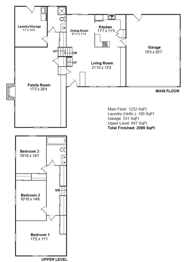
Main Floor and Upper Level
Main Floor and Upper Level