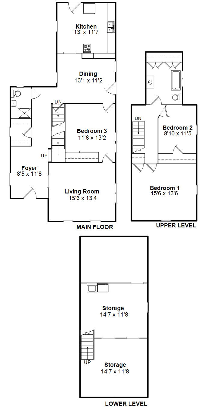
Full Floor Plan
Main Floor
Upper Level
Lower Level
Full Floor Plan
Main Floor
Upper Level
Lower Level