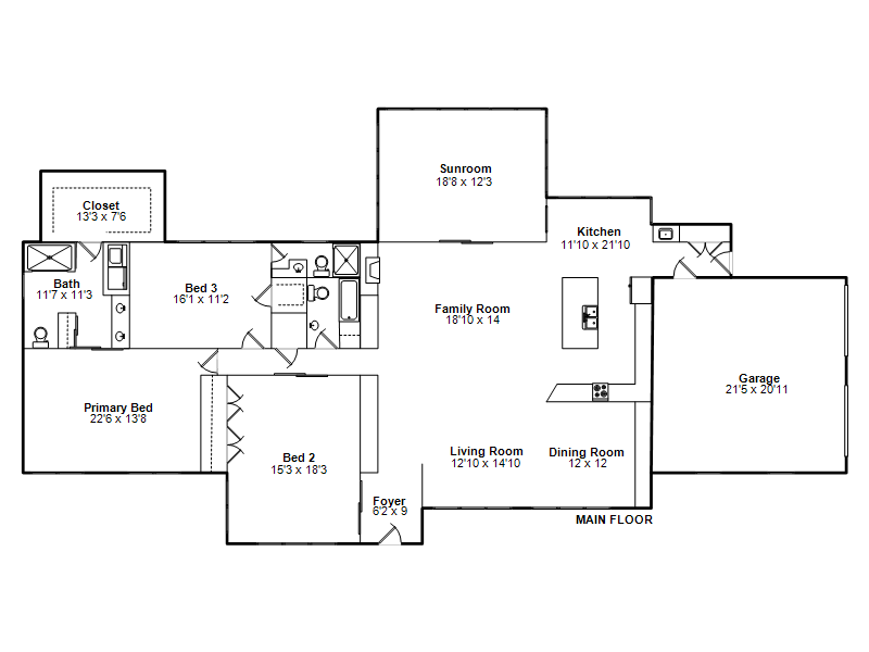
Main Floor
Main Floor